В ближайшее время с Вами свяжется персональный менеджер и ответит на интересующие вопросы.
*
текст
Описание
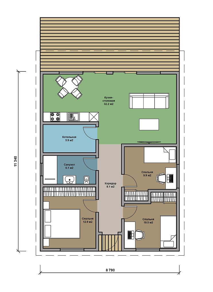
Фасады и планировки проекта